Problem to be solved:

Construction of a corrosion-free platform

Resources applied:

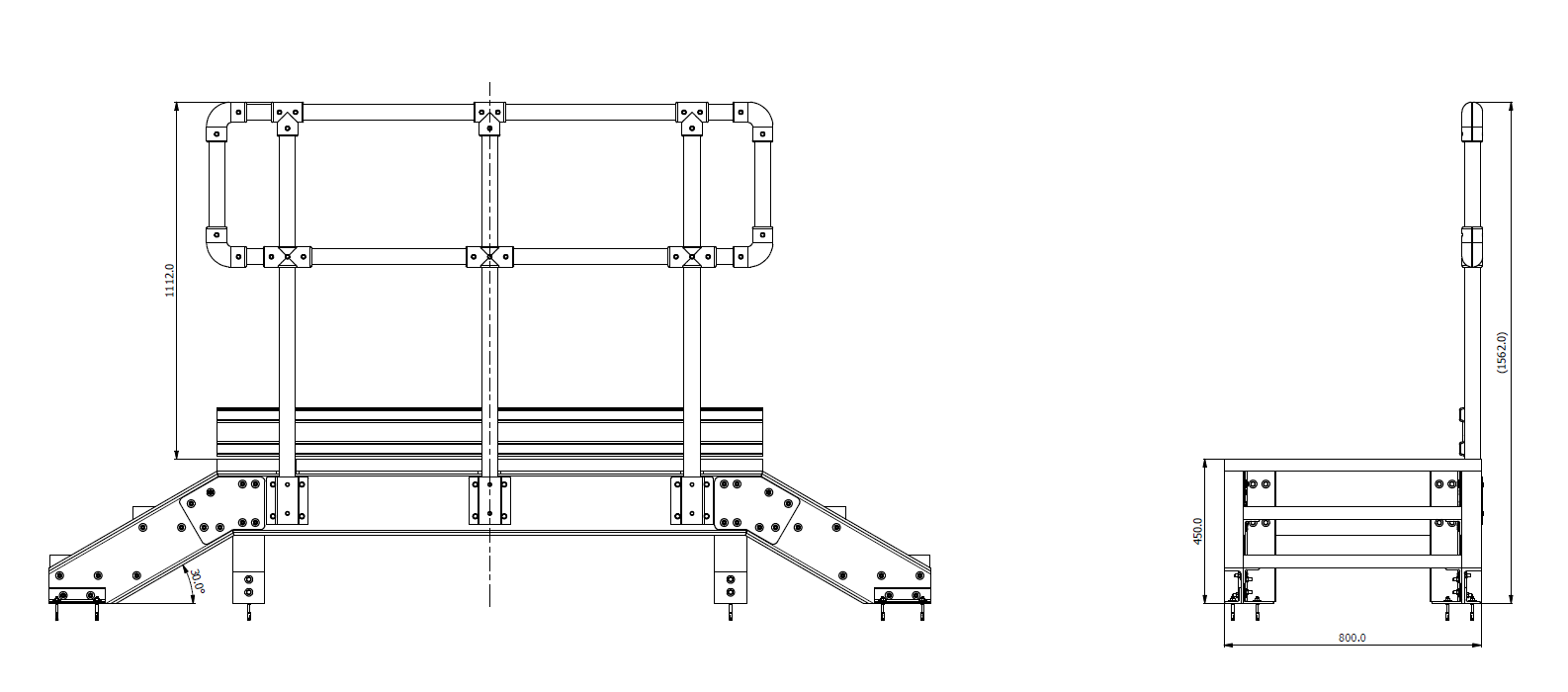
GRP gratings, GRP construction profiles and round GRP railing

Scope of work:

Design and manufacturing of an access platform

Industry:

Water and sewer installation

Date of completion:

March 2020

Summary:

One of our regular customers commissioned us to design and build an access platform to a reservoir in a waste water treatment plant. Due to the high risk of corrosion, we decided to build the platform using GRP gratings, construction profiles and a GRP railing system, which eliminated the risk of corrosion. An additional advantage for the client was the use of GRP gratings equipped with anti-slip coating, which minimised the risk of slipping. Thanks to the low weight and ease of processing of the products used, the platform was installed its final location within just a few days of project approval.